9 Fotos und Anhänge ansehen
www.wohnraum.nrw
Vorgebirgstr. 110a, 50969 Köln
Lydia Dünnwald

Adolfstr. 11

Balkon

Balkon

Balkon

Bad

Schlafzimmer

Wohnzimmer

Wohnzimmer

Küche

charmante Wohnung in der Bonner Nordstadt mit Gartenzugang

Eckdaten

  • Art Etagenwohnung
  • Lage 53111 Bonn
  • Miete zzgl. NK 800,00
  • Warmmiete 1.100,00
  • Zugang ab 12.11.2015
  • Nebenkosten 250,00
  • Wohnfläche ca. 62
  • Zimmer 2
  • Baujahr 1990
  • Etagenzahl 5
  • Heizungsart Zentralheizung
  • Einbauküche nein
  • Stellplatztyp Tiefgarage
  • Stellplatzanzahl 1
  • Kaution 2400 €
  • Haustiere erlaubt nein
  • Stellplatzmiete 50,00
  • Bezugstermin ab sofort
  • Bodenbelag Vinyl
  • Ausstattung des Bades Badewanne
  • Zustand Modernisiert
  • Immobilien-ID WMB427

Immobilie

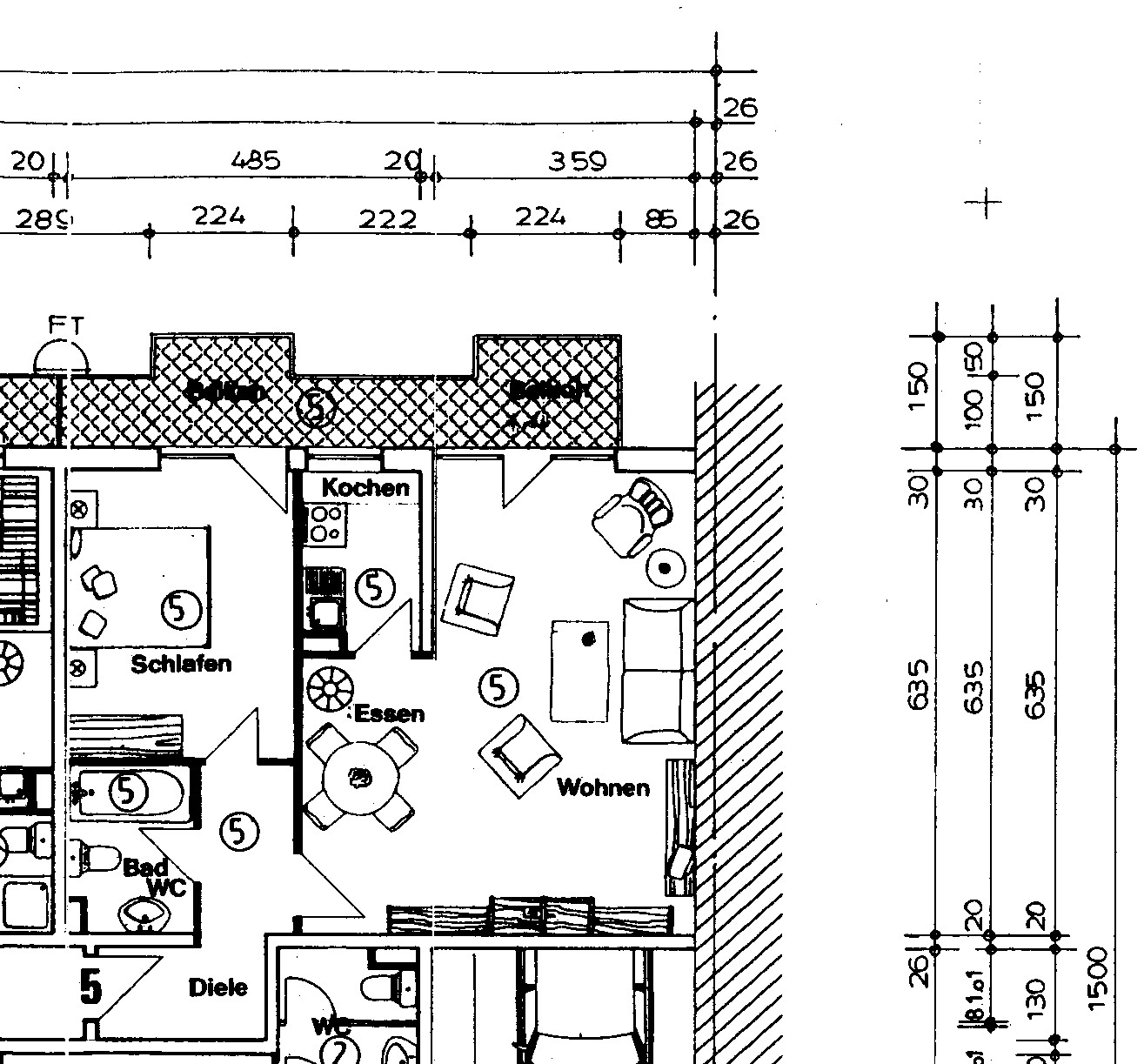
Die Wohnung befindet sich im Erdgeschoss eines sehr gepflegten fünfstöckigen Wohnhauses.

Von der Diele aus gelangt man in das geräumige Wohnzimmer sowie das Badezimmer und die Abstellkammer. Schlafzimmer & Küche grenzen an das Wohnzimmer und bieten jeweils einen schönen Ausblick zu Balkon und Garten. Der großzügige Balkon erstreckt sich über die gesamte Breite der Wohnung und ist vom Wohnzimmer und Schlafzimmer aus begehbar. Der Garten kann gemeinschaftlich genutzt werden.

In der Wohnung befindet sich ebenfalls eine praktische Abstellkammer.

Das Badezimmer ist mit hochwertigem Fliesen in Natursteinoptik ausgestattet und befindet sich in gepflegtem Zustand.

In der Wohnung wurde aktuell neuer Laminatboden verlegt, die Tapeten wurden ebenfalls erneuert.

Zur Wohnung gehört ein Kellerraum.

Insgesamt ein sehr gemütliche Stadtwohnung im schönen Bonn, für alle die das besondere Flair in der ehemaligen Bundeshauptstadt zu schätzen wissen.

Lage

Die Wohnung befindet sich in der Bonner Nordstadt, direkt angrenzend an die Bonner Innenstadt.

Von der Wohnung aus erreichen Sie in wenigen Gehminuten die KVB Haltestelle Bonn-West, von dort bringt sie die Linie 16 in zwei Minuten zum Bonner Hauptbahnhof. Die Autobahnen A555 und 565 sind binnen fünf Minuten erreichbar.



Alle Geschäfte des täglichen Bedarfs sind fußläufig

erreichbar.

Ausstattung

Keller Aufzug Balkon vorhanden Einbauküche

Sonstiges

Gerne vereinbaren wir einen individuellen Besichtigungstermin mit Ihnen.
Wir freuen uns auf Ihre Kontaktaufnahme.

Energieausweisangaben

  • Enerigeausweistyp Verbrauchsausweis
  • Energiekennwert 150 KWh(m²*a)
  • Energieausweis erstellt am 27.12.2007
  • Energieausweis gültig bis 27.07.2017
  • Heizungsart Zentralheizung
  • Befeuerung / Energieträger Gas

Grundrisse

Wie können wir Ihnen behilflich sein?

Herzlichen Dank für Ihre Anfrage.

Wir werden diese so schnell wie möglich bearbeiten.

Wie können wir Ihnen behilflich sein?
* Pflichtfeld